随着烘焙行业的快速发展,人们的消费习惯也在发生着巨大变化,消费观念日趋理性,对于舒适愉悦的环境,饼店装璜提出了更高的要求,推动了店面形象不断升级,那么如何为客户打造一个好的饼店环境氛围呢?作为一个饼店设计的方案设计师,必须懂得经营,不懂经营就不懂设计,下面由美潮饼店设计公司给大家介绍一下如何制定饼店的设计方案。
地理位置
要根据饼店的地理位置,产品的市场定位,饼店商圈,人流方向和消费群体来确定装修档次和装修风格的定位,一线、二线、三线、县级市场还有城乡结合等区域的差别,消费层次也不同,所以不要抄袭、硬搬,可以参考成功者的经营理念,但不要完全照搬,差异化经营才是具有竞争力的。有时候我们把不同优点拼凑在一起时,往往事与愿违,这是忽视完整性的结果,这也是大多数人容易犯的错误。

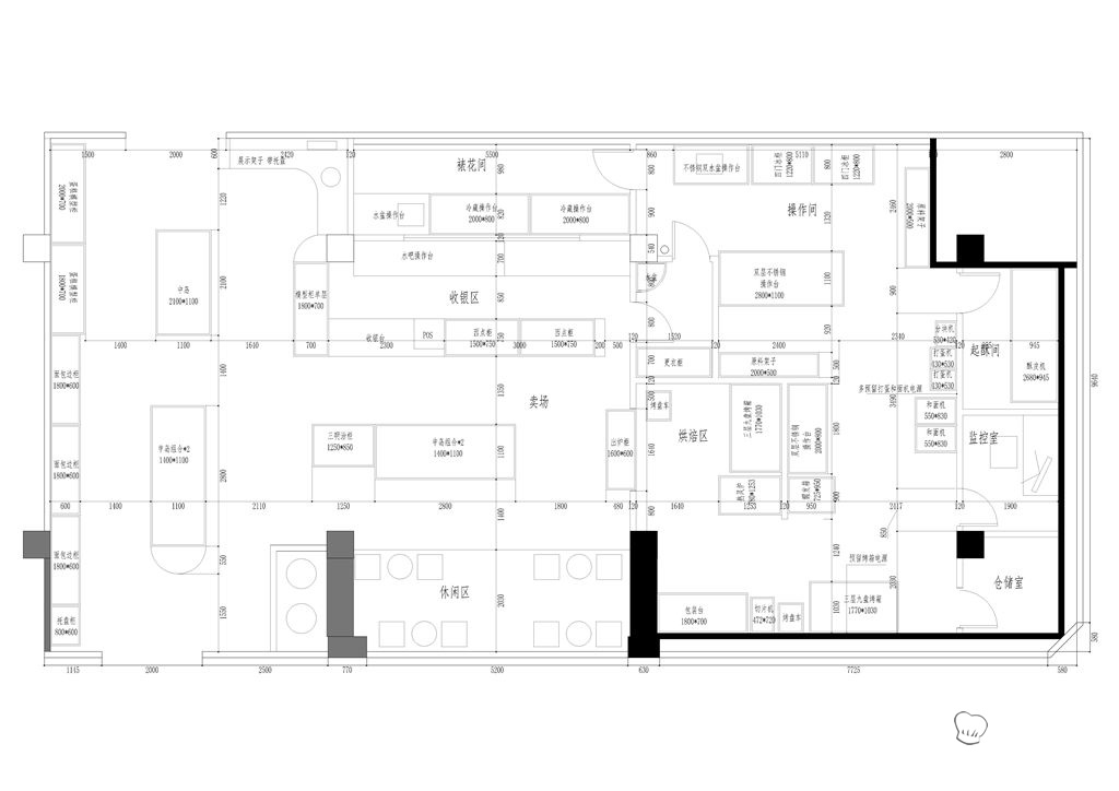
动线布局 设计需要先做饼店平面布局,现烤间,裱花间最好用通透玻璃做隔墙,这样能看到加工车间操作师傅加工的全过程,看着刚出炉的面包,整个店里弥漫着香浓的面包味道,让客户能体验到食品新鲜,健康,增加销售业绩。现烤间要与款台近距离,方便款台人员打包 ,接送产品。现烤间里面加工动线,烤箱、醒发箱、打蛋机、合面机、冷柜、操作台要摆放要顺畅,提高人员的工作效率。让客户直观能看到面包新鲜,增加购买欲望。卖场区的购买动线要顺畅,确定好黄金柜台,使主打产品更加一目了然,款台位置使销售人员能环顾整个卖场为最佳。

设计理念 卖场设计要根据不同的房屋结构来设计,卖场的灯光要冷暖色调搭配合理,使卖场明亮,突显产品为主。墙面可用一些现代感比较强的马赛克、玻璃、金属等材质。休闲区的灯光不宜太强,稍显幽暗的光线反而能让气氛达到最佳,给人心理上的安全感与归属感,身心自然放松下来,情侣靠在一起喃喃说着情话,好友死党间交流着彼此的心情与生活趣事,形成一种特别的磁场,这样的画面透着说不出的温馨,熟悉的人,美味的蛋糕,明暗有序的灯光,漂亮的桌椅,耳边伴着舒缓的音乐,俨然是浪漫情调的享受,也是久违的生活气息。水吧区也是要打造的亮点之一,一般饼店都是将收银台和水吧放在一起,前面是收银台+蛋糕柜的组合模式,后面是真正的水吧区,有不锈钢打造的吧台台面,也有木工板和大理石结合的吧台台面,最少要配一个水池。水吧区域的设计中最重要的就是注重与饼店整体风格的协调性,颜色搭配要融入饼店的整体设计氛围中,使空间在实用功能的基础上展现出外在形式的美感,给顾客以美的享受,及美好的购物体验,并留下深刻印象,最终成为饼店的固定消费者。

美潮装饰蛋糕店设计咨询电话:400-0311-801 18931999839 QQ:875311253


        
        
        
        
        
       
        
       
        
        - 
      
加盟小型一些的蛋糕店可以吗? - 
      
藤椅
dou59410411 发表于 2013-11-08 17:37  |  只看该作者
       谢谢楼主分享,第一个设计的方案真的很不错啊! - 
      
谢谢楼主分享 - 
      
这个好~~~呵呵~~~ - 
      
谢谢楼主的指教,相信会给以后开店指准方向~~ - 
      
6楼
nelson3688 发表于 2016-01-18 09:26  |  只看该作者
       学习学习顶:) 





发表主题
快速回复
3111
6
